Anchorage
Suitable for wheelchair users, roll in shower with shower chair, higher toilet all with safety handles.
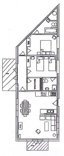
Ground floor flat, 2 bedrooms, 2 bathrooms en suite, spa bath, sauna, log burning fire, underfloor heating, parking, garden.
Bedroom 1 - Double bed , TV, dressing table .wardrobe, chair, en suite bathroom
Bathroom 1 - Spa bath with shower, sink & toilet. toilet paper, bath mat. electric towel heater
Bedroom 2 - Twin beds or King size bed, TV, build in cupboard, chair, en suite bathroom
Bathroom 2 - walk in shower, with hand rails, higher toilet, with handles, and shower chair when needed.
,
The accommodation is equipped to a very high standard with the following:
- Cooker - electric hob, oven and extractor fan
- Microwave
- Dishwasher
- Vacuum Cleaner
- Free WiFi
- large flat screen TV
- TV's in all bedrooms
- Iron, Ironing Board
- Sauna
- Spa Bath
- Garden furniture,
- Bring you own BBQ
- Coffee maker
Satellite TV, Parking, Hot Water bottles, Fridgefreezer, Hairdryers, Underfloor Heating, Linen and towels
Log burning stove, Blender, pots & pans, plates ,dishes, cutlery, washer & dryer, drying rack .
You can park your car right at the door, there is a ramp into the accommodation. It has a large white open gourmet kitchen with everything you need. Very large windows with incredible views of Loch Melfort. You feel so free as even from a wheel chair you can see everything. The dining area is right by the window. Lounge with a corner sofa and reclining chair. Just come and relax. Large screen TV, wood burning fire, a basket of fire wood. In the hallway is the large private sauna, and the two bed rooms. Both with en suite bath rooms and large flat screen TV's .
Bedroom no. 2 can be set up as a super king size bed or with twin beds. there is a roll in shower. You can request a shower chair and handles by the toilet. Just let us know.
There are french doors which lead to the patio right on the Loch, and the beach .A great place for the kids and the dogs .... - relax and enjoy the tranquillity or bring your own boat and fishing gear and catch fresh fish for supper. Bring a BBQ , your camera, or a paint set .
This accommodation can also be rented as a one bedroom property, with walk in shower.
A wonderful space for the less able guests, or big doggies
When you arrive, all the beds are made up, and there are plenty of towels, toilet paper.
Any time of the year, you can enjoy the cosy and clean flat.





