Commodore Balcony Suite - lochview
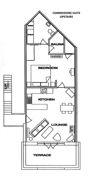
Upstairs apartment accessed via stairs, with adjacent parking, King size bed, 2 TV's, Wifi, log burning fire, under floor heating, well-equipped kitchen, lounge, private sauna, shower, bath, large balcony with fantastic views of Loch Melfort.
Bedrooms & Bathrooms:
-
Bedroom: King size bed, bedside tables, wardrobe, chairs, dressing table, sauna.
-
Ensuite Bathroom: Shower, bath, basin, W.C., heated towel rail, toilet paper, soap.
Commodore is carefully equipped and beautifully maintained to a very high standard, offering a comfortable, memorable stay with a touch of luxury with the following:
- Electric oven and hob
- Microwave
- Dishwasher
- fridge-freezer
- Washing Machine
- Hair dryer
- Sauna
- Underfloor Heating
- Flatscreen Smart TV
- Second TV in Master Bedroom
- Parking
- kettle
- coffee maker
- Oil-filled radiator
- Free WIFI
- Linen and towels
- Ironing Board
- Iron
- Vacuum Cleaner
- Bath
- Shower
- Log burning stove (wood can be purchased from Reception)
- pots & pans
- plates, cups, glasses cutlery
- toaster
- electric towel heater
- drying rack
Panoramic Loch Welcome
This light-filled, Scandinavian-inspired first floor suite is reached via a short flight of stairs. Park your car, open the door, and you’re instantly greeted by breathtaking views across Loch Melfort, with an ever-changing coastal panorama that draws you in.
Kitchen
The apartment is laid out all on one level and features a modern, fully equipped kitchen with everything you need to prepare delicious meals, including a fridge-freezer, a modern oven with grill and microwave oven just above. You also have a toaster, and coffee-maker at your disposal
Warm & Romantic Living Space
The spacious living area is centred around a cosy wood-burning stove. Firewood and kindling are provided to get you started and you can purchase more from reception — perfect for winter evenings and creating a warm, romantic atmosphere.
Entertainment & Work Space
Enjoy a flat-screen smart TV where you can log into all your personal streaming accounts plus a comfortable dining area that also works beautifully as a laptop or workspace.
Strong WIFI - Fast internet can be hard to find in the locality, but Melfort offers recently upgraded complimentary fast WIFI throughout the resort so you can stay connected to your online social life. You can also login to streaming channels for catching up with all your favourite programs on both the smart tv or your personal devices.
Balcony With Stunning Views
French doors open onto a generous private balcony with outdoor furniture and uninterrupted views of Loch Melfort, widely considered one of the most beautiful lochs on Scotland’s West Coast.
Comfortable King Bedroom
The bedroom features a king-size bed, flat-screen TV, dressing table, wardrobe, two chairs, a dressing table and a bedside table either side of the bed and plenty of space to fully unwind.
Private Spa and Stylish Bathroom
Enjoy your own private sauna whenever you wish (located on the right hand side just before you enter the bathroom), along with an ensuite bathroom featuring a bath, separate shower, sink and toilet. Fresh towels are provided plus essentials such as toilet rolls and soap to start you off.
Relax & Rejuvenate
The Commodore Suite is a space to breathe, feel free, and truly unwind — a peaceful retreat to enjoy at any time of year with the seasonal changes that provide a visual treat.





